پارسی

project design & exeation

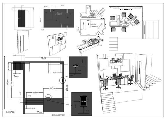
Diacoiranian Chain Stores Co
at September 2011 for Diox


Client: DiacoIranian chain stores investment Co


Year: 2010 Month: August day: 28


Relevant Teamwork: Design Decoration


Description: exhibition booth design Diox Co of Pharmacists Conference
Diacoiranian Chain Stores Co